Accueil
Projets
Contact
A Propos
Accueil
Projets
Contact
A Propos
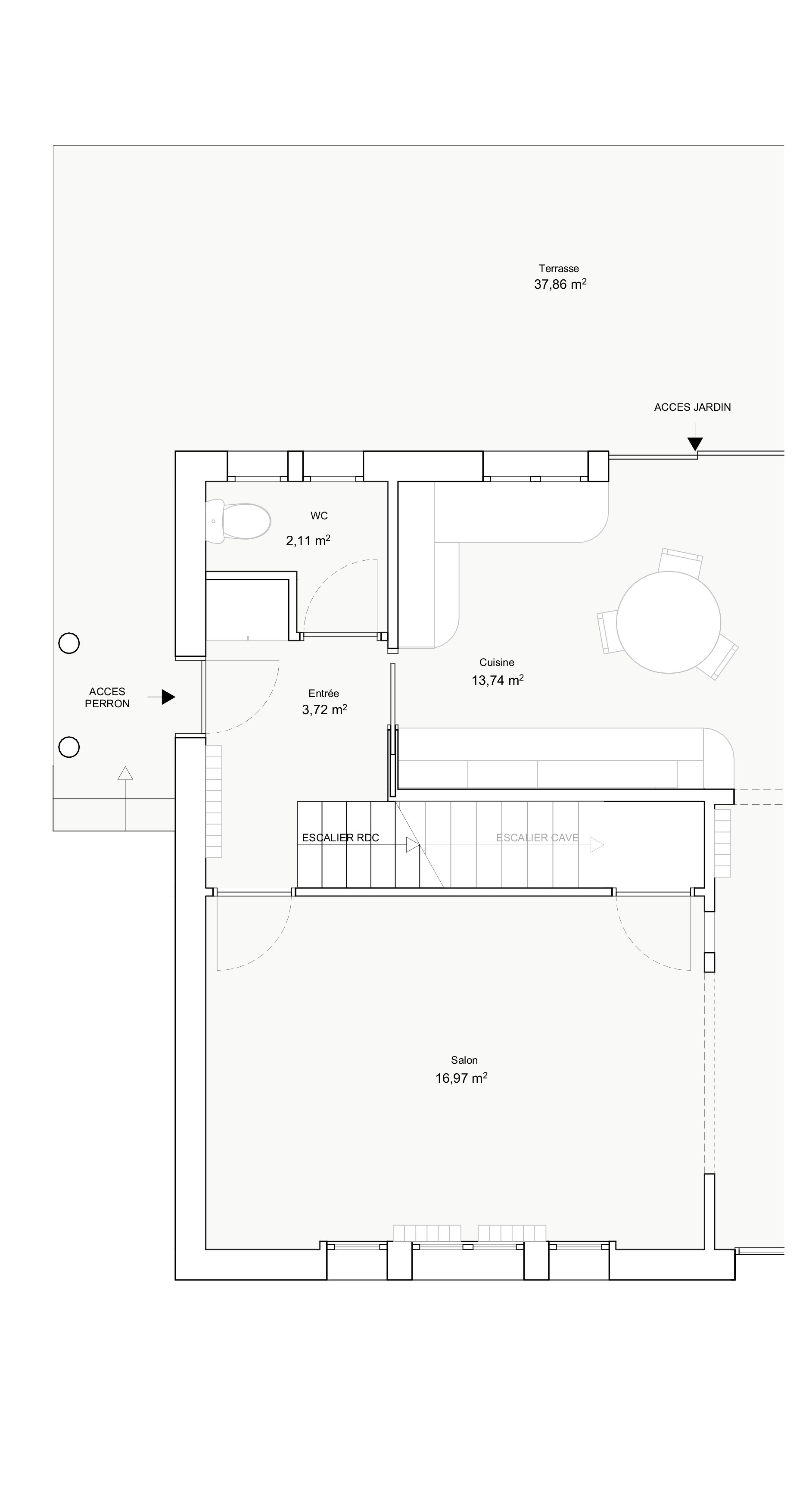
Maison Notre Dame
Surface 170m² Projet en cours
Vous aimerez aussi
Cantina del Asinara
2025
Appartement XVIIIeme
2023
Maison Lanmeur
2025