photo de la facade existante
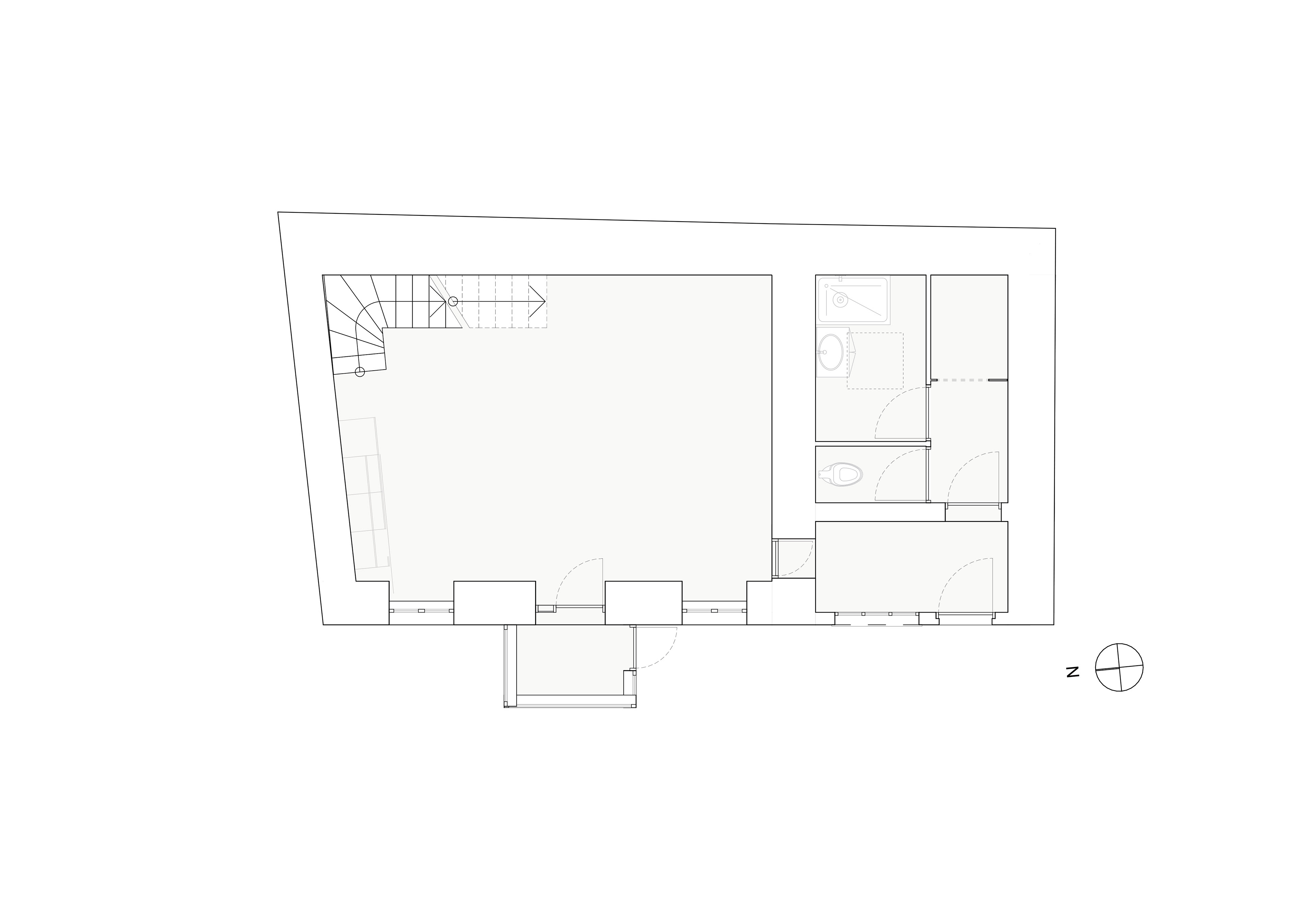
EXISTaNT
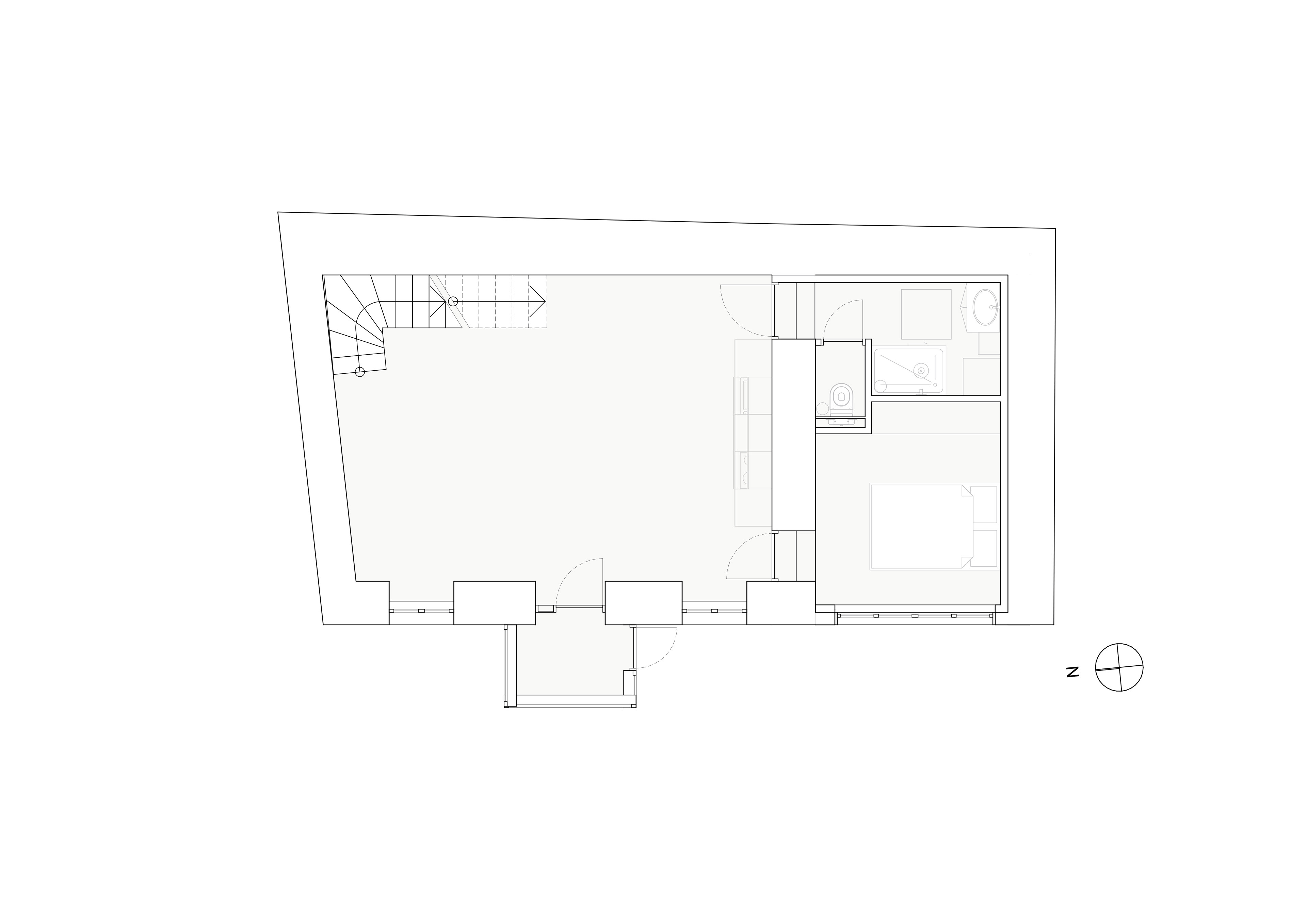
PROJET
Croquis de façade projetée
Surface : 120m² Le projet consiste en la rénovation complète d’une maison située en Bretagne. Les principaux travaux portent sur l’élévation de la toiture de la dépendance afin d’augmenter la hauteur sous plafond et d’améliorer le confort intérieur. Les circulations intérieures sont repensées pour optimiser les déplacements et permettre la création d’une nouvelle chambre ainsi que d’une salle de bain. La façade est également modifiée afin d’accroître l’apport de lumière naturelle dans la chambre. Enfin, la cuisine est repositionnée et mise aux normes actuelles, tant sur le plan fonctionnel que technique.
photo de la facade existante
EXISTaNT
PROJET
Croquis de façade projetée